GENTILLY

Adresse : 42 Avenue Pasteur 94250 GENTILLY

Surface : 940 m² SDP au total - 370m² SDP logement neuf

7 logements neufs privés

Budget de travaux : 1,3M € H.T

Livraison : chantier livré en 2017

Maitrise d’ouvrage : privée

BET STR : BSI Structures | BET CVC/Thermique : KALEGOS

Entreprises : BGS Construction (EG)

Labels : RT2012 - 20%

_programme

Mise en cohérence de l’ensemble de l’assiette de projet (5 parcelles).

Construction sur l’une des parcelles, d’un immeuble neuf de 7 logements du T1 au T3.

_présentation du projet

Le projet est un projet de construction et de mise en cohérence d’usages. Une partie de ce projet est destiné à l’usage locatif, l’autre à l’amélioration du cadre bâti des propriétaires.

Cette mise en cohérence se traduit par plusieurs chantiers majeurs :

- proposer un parti urbain et paysager cohérent, en agrandissant le jardin existant et en proposant des usages communs renouvelés. Le jardin devient le cœur d’îlot en le clôturant par l’implantation d’une nouvelle forme urbaine.

- à cette fin, construire un petit immeuble de 7 logements intermédiaires sur la parcelle connecté au bâtiment préexistant, en mettant en communs des locaux et les moyens de stationnement.

- proposer une intervention globale cohérente par une harmonisation des parcours de l’ensemble des parcelles d’assiette du projet, en offrant des usages communs et un partage des espaces ouverts, tant aux propriétaires qu’aux locataires des immeubles

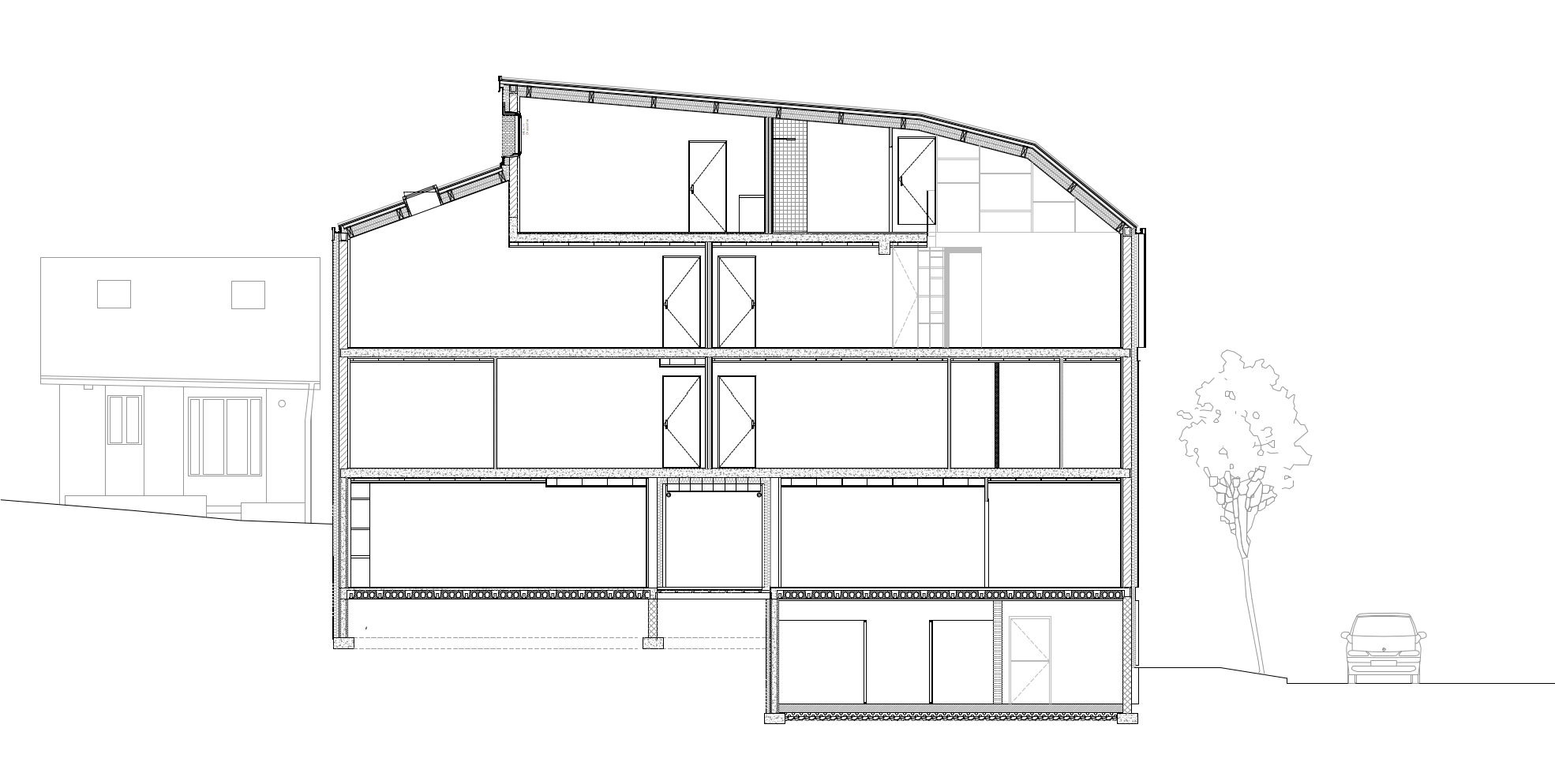
Coupe longitudinale

Plan de RDC

Plan de R+2

Plan de R+3

Suivant
Suivant

VILLEJUIF