Adresse : 138 Boulevard Vincent Auriol 75013 PARIS

Surface : 58m² SDP

Budget de travaux : 35 000€ H.T

Livraison : 2017

Maîtrise d’ouvrage : privée

Missions : architecture, design en mission complète

En partenariat avec les ateliers de l’Echiquier

_programme

Réhabilitation d’un logement personnel de 58 m2

_présentation du projet

Nous parlons d’un espace de vie personnel, celui d’une chercheuse biologiste, passionnée de peinture. Un appartement situé dans un immeuble moderne, tout de béton, datant des années 70.

Au terme de plusieurs décennies d’occupation, cette femme décide d’engager une reconversion de son appartement, avec des intentions bien définies : mettre en valeur ses peintures, colorer l’appartement, et mettre en scène des meubles hérités du Museum d’Histoire Naturel.

Le projet propose de réaliser une percée diagonale vers la lumière de la façade. La cuisine s’ouvre sur l’espace de vie tout en créant l’intimité d’un espace dédié à une table à manger.

Les meubles deviennent les arguments de cloisons épaisses ; les percées dans les murs des porosités secrètes des usages.

La couleur prend sa consistance sur des plans bien définis comme une verticale, un ciel ou le simple chant d’une porte.

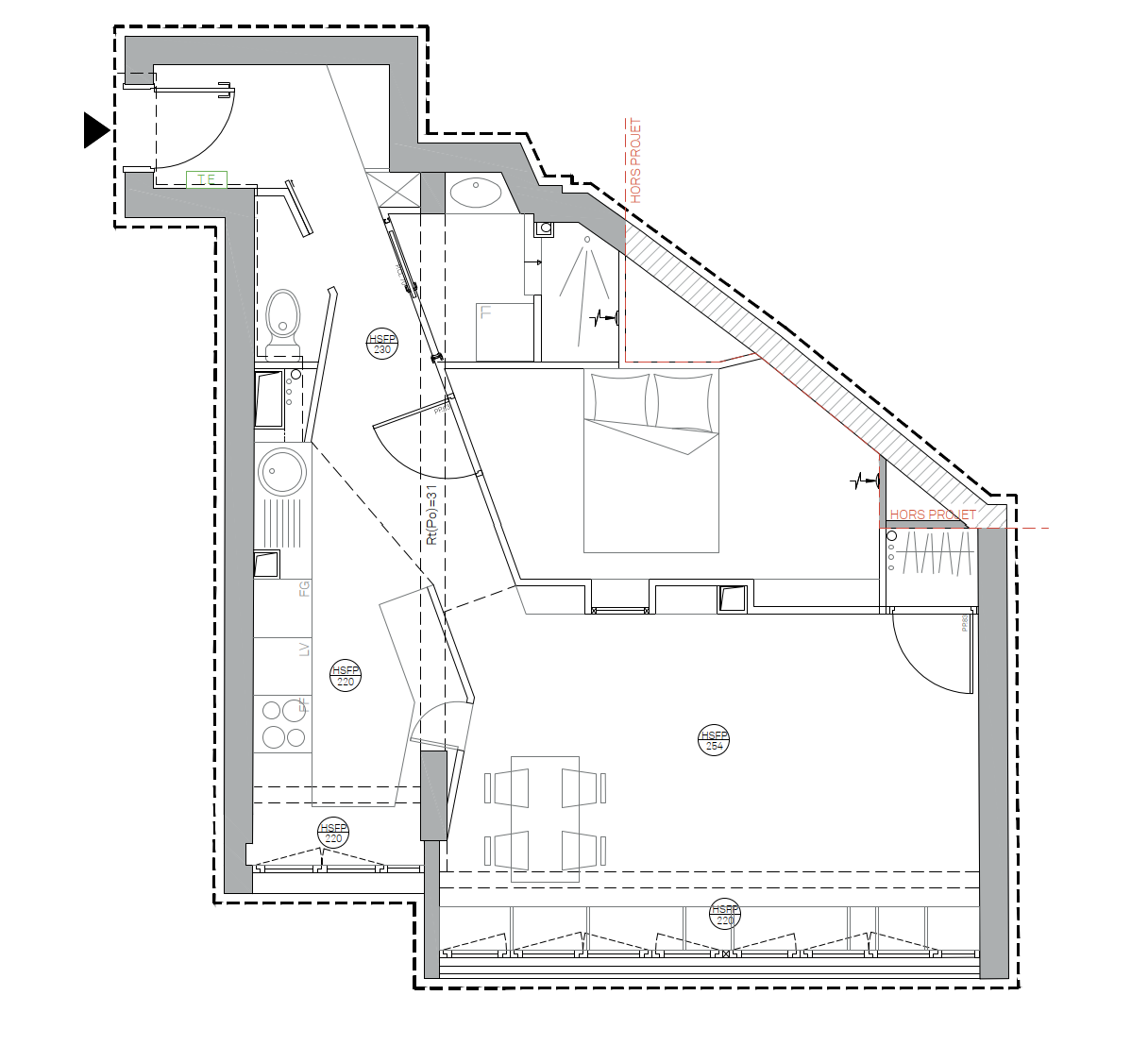
Plan de l’existant

Projet de recherche en esquisse

Suivant
Suivant

GENTILLY