GENTILLY

Adresse : 39 Avenue Pasteur 94250 GENTILLY

Surface : 50m² SDP - Extension de maison individuelle

Budget de travaux : 125k€ H.T

Livraison : chantier livré en 2019

Maitrise d’ouvrage : privée

BET STR : BSI Structures

Entreprises : BGS Construction (EG)

Labels : RT2012 - 20%

Mission complète architecturale + design intérieur

_programme

Construction d’une extension de maison en interstice entre deux corps de bâtis existants

_présentation du projet

Le projet d’extension se veut comme une prachèvement d’un projet immobilier global, qui conclut la construction d’un immeuble locatif de 7 logements au 42 avenue Pasteur.

La particularité est l’implantation sur un joint creux entre une maison traditionnelle et un premier immeuble locatif au 40, Avenue Pasteur.

L’implantation de cette extension vient chercher des vues sur le jardin, par la création d’un jardin d’hiver type « orangerie » entièrement vitré. Cette avancée permet en subtilité de préserver la terrasse du pavillon existant des vues du bâtiment neuf en construction.

De sorte que l’usage à la fois collectif du jardin et l’intimité de chacun soit ménagée.

Structurellement, le projet est porté de part et d’autre, comme réalisant un pont, et fabriquant un front construit uni sur l’Avenue Pasteur

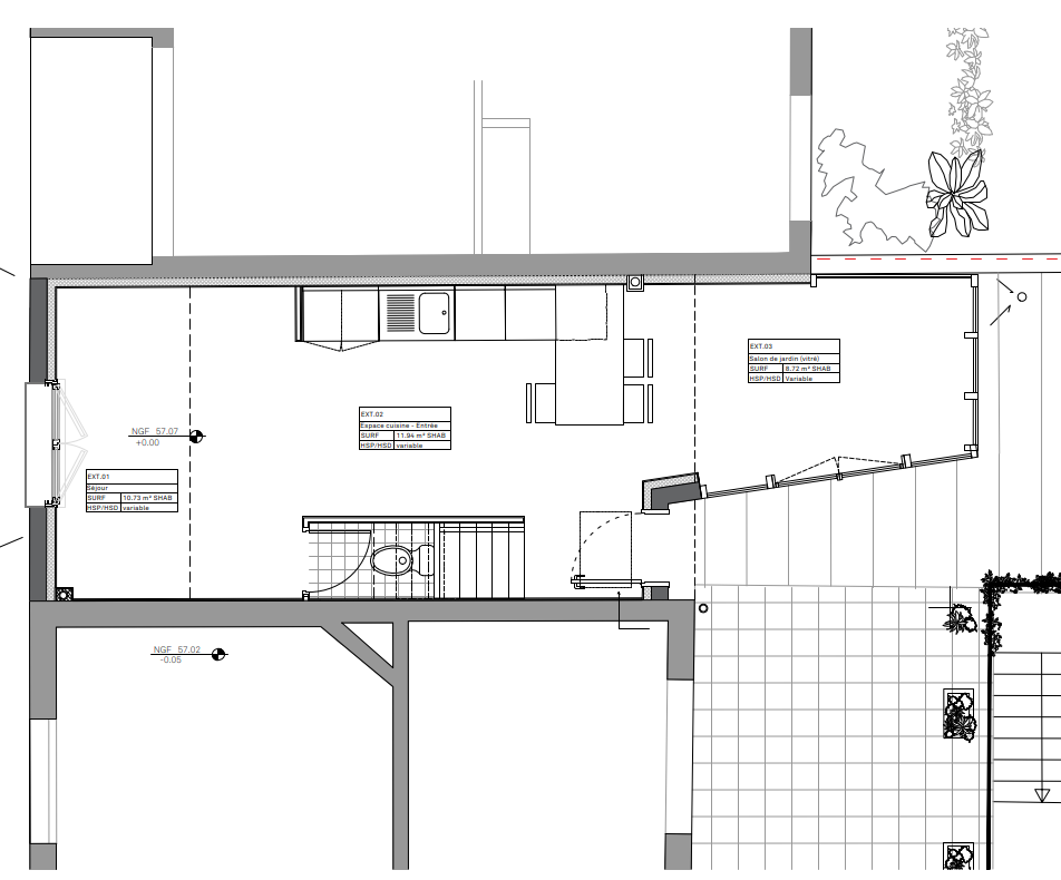
Les aménagements intérieurs répondent des usages spécifiques de la famille, avec notamment un “podium” servant à recevoir un lit, sous les étoiles. Les espaces humides comme la salle d’eau dégagent des vues dérobées sur le jardin de cour, faisant entrer l’extérieur à l’intérieur.

Plan de masse de l’extension

Plan de RDC

Plan de R+1

Coupe transversale

Elevation côté jardin

Précédent
Précédent

AURIOL

Suivant
Suivant

LES LILAS